The Urban Studio is a collaboration between the College of Design Construction and Planning, the School of Architecture, and the Florida Community Design Center. The studio space will house students working on projects that bridge academic research and community research.

Project Objective
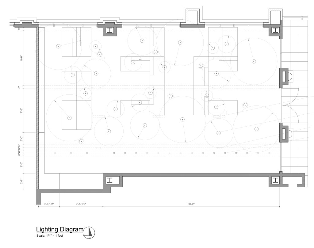
Utilizing the standard renovation budget allotted in the lease, we simplified the material pallet to paint for the walls and exposed ceiling, stain and seal for the concrete floor, and bulk 1” thick Baltic birch plywood which allowed us to fabricate the sliding doors, shelves, desks, and work tables. Simple IKEA plug-in lamps were used in the ceiling for general illumination and cable lighting for the display wall. Hanging lights were organized on a Fibonacci modular system also used to size the desks (3’ x 5’) with 5’ x 8’ lengths in an “L” configuration.










