Agri-Urbanism proposes alternative models for long-term sustainable living as conceptual vignettes that nest civic organization, infrastructure, economy, and ecology as a complete community.

Project Objective
The book presents urban and suburban scales of development that viably blend agriculture, forestry, transportation, commerce, and housing within a compact 20,000-person community that globally occupies 17,000 acres of sparsely developed and natural lands. Students and faculty from across disciplines at the University of Florida worked collaboratively to prepare 12 master plans and 37 detailed community program elements that employ sustainable living concepts.
They include specific urban program elements such as housing, civic buildings, commerce, transit, and infrastructures of energy production and water reclamation that are necessary for the ecological integration of agriculture and community. This work and subsequent publication were conducted by Martin Gold and Mary Padua in their capacity as professors working with students from the University of Florida School of Architecture and the Department of Landscape Design. The work was funded by Plum Creek.
Full publication available for order: click here

Concepts and Proposals
The concepts and proposals that follow in this document have emerged from the resources, opportunities, local ecology, and the unique historic moment when momentum builds to the point that a quantum leap is both possible and feasible. To catalyze this advance, an expansion of thinking and reconsideration of past policy, resource value, and social
capital is necessary. It must also come from knowledgeable community leaders who are vested in gathering community consensus around shared benefits and opportunities. At the time of this proposal, these elements were converging positively.
Can agriculture and urbanism coexist to form a more healthful and resilient community? This is the foundational premise of this vision. How can the infrastructure needed to support both systems be interwoven and self-sustaining through the material, resource, and energy loops?

Considering this possibility, a large-scale, master-planned community offers the possibility to study, propose, and test, alternatives that could bring this vision to fruition. In that fashion, twelve master plan alternatives, each with three community program interventions (36 total proposals), offer insights into the potential for an emergent urban form that expands principles of new urbanism, walkability, live-work-play, and resiliency to include traditional and emergent agriculture.
These proposals seek to accommodate housing ranging from suburban to high-density nodes to offer the widest range of inhabitation – large families to singles – while offering activities, jobs, and recreation for the young through the elderly. In particular, the idea of ‘cultivation’ as a model for community living and as a literal translation of agriculture, provides the underpinnings for a community that can continue to reinvent itself, invest in itself, and have the opportunity to export food, plants, technology, and expertise as a self-reinforcing economic niche.
Agrimorhic Landscapes
Audrey Guitierrez, Andrea McCain, Amelia Shahrabi
This proposal seeks to bring together the pastoral notions of agricultural fields celebrated by surrealist artist Paul Klee with the center pivot irrigation as an emergent agricultural fabric. Buildings, streets, and parks are woven into the interstitial spaces between the circular fields creating a dramatic juxtaposition between urban and agricultural forms. The proposal optimizes proximity providing efficient and effective resource-waste recycling toward sustainable and healthy living.

Utilizing the phosphorus-rich lake water, industrial ecology is introduced that filters phosphate from the lake – cleaning it – and utilizing the mineral as fertilizer to grow an array of plants and vegetables. One example is sunflowers that can be used for food, or as a biofuel source. The remaining husks and stems are then charred for use as filters to extract the phosphate from the lake water. Here the ‘industrial’ process produces goods/ exports while the process reclaims a diverse lake habitat from a currently eutrophic lake.
Farming East Gainesville – Andrea McCain
An extraction facility is proposed as both a lake remediation strategy and a resource capture process. Phosphate that is currently degrading the lake ecology is filtered and removed (mined if you will) to provide fertilizer for an industrial-scale agricultural production facility. The facility or ‘factory’ will produce fast growth mediums such as algae, sunflowers, or switchgrass that can be used for fuel, food, or both.


The process seeks to operate as both production and research. As rain naturally scours the land feeding phosphorus to the lake, research is necessary to find the right extraction balance that will bring the lake back to a healthy and diverse ecology for swimming, fishing, and water sports.
Sunflower Factory – Amelia Shahrabi
Sunflower production is utilized as an energy crop to provide oil and composite materials such as paper. The fields of sunflowers also become a factory of their own, enabling bee activity and taking care of plant production as well as bee population.
The Sunflower Factory lies within a mile-long building with the flexibility of industrial warehouse space, one that uses crop residuals with forestry by-products from the development of composite materials. Instead of burning the residuals, other material compounds are made as well as soil fertilization.
Emerald Braid
Jason Bond, Jourdona LaFate, Samuel Williams
The Emerald Braid was developed around urban cores that are connected through a braid of recreational green space, productive landscape, and residential communities. The development footprint is about 1,000 acres to the east of the wetlands. It is organized as a linear corridor that is carved out of the existing site conditions
Site Strategies:
• Preserve wetlands/wildlife corridor
• Create a continuous green buffer with recreational space and agriculture
• Adapt to existing site conditions
• Separate urban cores for more access to nature
• Provide a wide range of housing options
• Composting for fertilizer
• Stormwater catchment for irrigation


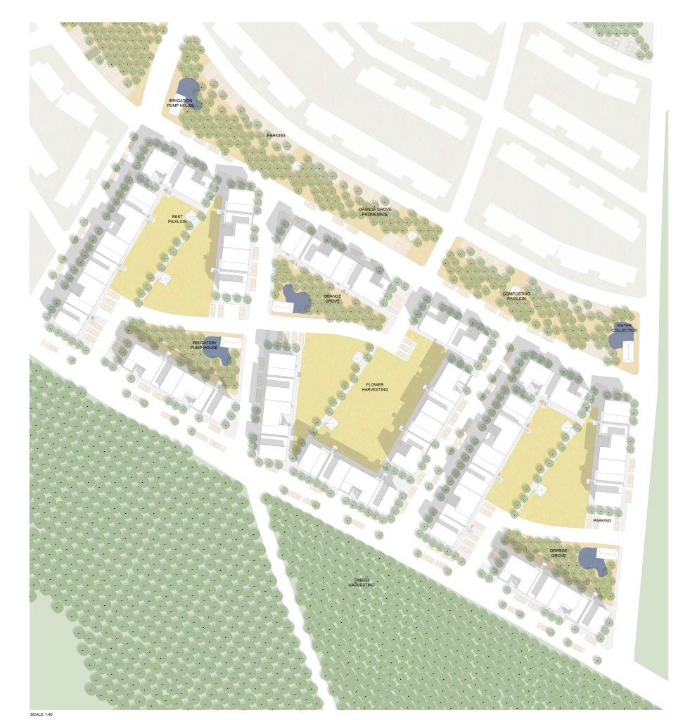
Farming Community – Jourdona Lefat
Each block is a module containing an orange grove, flower meadow, picnic pavilion, water collection for irrigation, parking, and a community pavilion for storing materials and equipment.

Three unit types are provided, each with an accessory unit on the third floor. Program elements have been stacked for efficiency within each unit in order to allow residents the luxuries of single-family housing without sacrificing for compact living.




Field of Communication – Samuel Williams
A civic reading facility promotes knowledge and integrates beneficial communication and networks with communities that strive for social and cultural identity. But why design a public library for a community of 22,000 individuals or more? Research has shown that if people appreciate the design of a library and its environment, they are most likely to spend time in it, studying, reading, and learning.

Traverse
Mary Carver, David Bly, and Stephen Williams
Traverse embodies three ideas: bridging, corridors, and satellite communities. These three ideas express a movement that exists at all scales within an urban environment.
By extending an artery of transportation across Newnans Lake, we raise awareness of its importance to the surrounding communities. Bridging extends into our proposed site as a way to weave particular urban functions together as a cohesive whole. The minimal impact on the natural wildlife corridors through the bifurcation of Newman’s Lake is effective, yet maintains a small footprint.
A wildlife corridor extends through the landscape east of Newnans Lake. By bridging the wildlife corridor, we are able to leave it untouched and preserve the natural habitat, an important step in protecting prized native species. Urban corridors are introduced with parks,
museums, restaurants, schools, and civic buildings. Corridors effectively create distinctions within the denser-built spaces, which like micro-communities, work together to create a diverse and dynamic whole.
Hydroponics: Urban Garden – Mary Carver
The program is an interwoven organic market that allows for the growth, sale, and consumption of goods produced on the property and beyond.
There are four main greenhouses, an orange grove, a restaurant, and shops within its boundaries that are linked through a green wall circulation system. The green wall, along with the greenhouses, uses hydroponics. Each greenhouse is linked to the wall system at different heights based on the produce being cultivated. These greenhouses also study new agricultural techniques that can be used within the facility and the surrounding developments.
Arts Guild – David Bly
This space promotes a collaborative spirit in art-making that engages the public. It is set within the arts district of our greater master scheme where both artists and students of the art can come together in an open learning environment. Around the exterior are gardens where artists can experiment with plants for natural dyes or pigments as well as work in the open air.
The building intends to use the basic language of architecture to engage the artist. It is not a work of art itself, rather using surface and light it is a bare canvas built to receive the artist’s work. The material juxtaposition embeds transparency within stereotomy – public exhibiting space is woven into private working space.
Apiary Towers – Stephen Williams
Anchored on the north and south by two residential towers, the mixed-use project has retail shops and a community theater on the first two levels. The “Flower Box” mediates the gap between the two towers, allowing for unobstructed views from the residential units to the “corridors” and serves as the catalyst for Agri-Urbanism, allowing for the production of honey in the Apiary Towers.

Influenced by the construction technique and proportions of the urban beehive, the residential towers are a series of one-story flats and two and three-level living units that allow for a variety of living conditions and possibilities.


Green Bridge
Katie Addicott, Jeremy Franklin, and Alana Taylor
The Green Bridge community is based on existing transportation infrastructure, soils and drainage, proximity to the natural wildlife corridor, and limiting impact on adjacent communities.
Green Bridge creates a compact, agricultural community based on three core principles:
- Green Belt – a swath of nature to the south and southwest of the community that forms a buffer between urban density and the natural wildlife corridor.
- Green Boulevard – localized strip of green that contains modes of public transit (rail, biking & running paths) other public resources, and recreational amenities.
- Eco-Filter – the layering of urban and landscape conditions to support a sustainable environment with a minimal negative impact on Florida’s natural landscape.
Lake-Breeze House – Jeremy Franklina
As a rural proposal, two alternatives using the same ‘kit-of-parts’ are proposed for two important contexts that emerge from the larger study. When the house occupies the edge between the forest and lake, it rises slightly from the ground to take advantage of the cooling lake breezes.

Alternatively, when located in the forest, the home is raised 8’ to 10’ to nestle in the shade of the pines while still being able to access breezes. Views connect the inhabitants to either the lake or the canopy depending on the location providing ‘eyes on the ecology’ stewardship and offering a rural lifestyle in close proximity to urban amenities.
Cluster Drape
Kevin Fitzgerald and Oneil Howell
Cluster Drape is a direct expression of the operations engaged to organize a highly integrated living, manufacturing, and agriculture development. Cluster gathers the residential and commercial into highly compact forms using vertical housing to provide visual amenity, proximity to diverse commerce, and to provide the density necessary to support viable transit to nearby destinations.
Drape covers the auto and industrial infrastructure with lawns and agricultural production. The drape shades parking and other operations while offering a greenscape park for residents and visitors. The Cluster Drape system works in a complementary manner to provide a high intensity of activity while maintaining large open greenspaces.
Agri-Urban Fabric – Kevin Fitzgerald
The project proposes to utilize timber as an integral and experiential aspect of life within the community. A set of operations introduces pockets of the timber directly into areas of dense urban development, creating a juxtaposition in which timber is grown to be showcased as a celebrated and important ecological cycle.

Different circular pockets carved into the community provide the potential for various heights and ages of timber to be placed throughout the site. As the timber cycles, it creates and recreates spatial relationships with the architecture, changing the way people interact with the timber.
The project is located east of Gainesville, Florida, immediately off of Highway 301. Situated between several rural communities, efficient connections to nearby towns of Windsor, Waldo, and Hawthorne are within a 10-mile radius. The community road system is grid-based on simple connections to Highway 301 and County Road 1474. Roadways dictate primary spatial organization for the site. Circles of vegetative pockets are placed to shift the driving experience back and forth between urban and rural contexts.


The community provides a range of built densities, the elevated landscape / urban core being the highest. As the grid separates itself from the elevated landscape, the building environment becomes less and less dense. If the community were to expand, it would focus itself along the major arterial roadways connecting to neighboring towns. The language of the circled vegetative areas would remain and grow along with built construction.
The Vegetative circles provide an opportunity to break the very rigid, relentless nature of the city grid. The project aims to use the timber as a showcasing element to the community, rather than building exclusively within a given area and disregarding the timber. The timber growth within the community as a showcased element is managed in a way a juxtaposed the culture and pace of urban living with the evolutionary pace of timber growth. In this respect, different ages and heights of timber are located in different circles, exposing this cycle of growth to the residents. The vegetative circles are not only showcased but are very interactive with the living experience of the community.
The project proposes an urban community that is contextually and socially sensitive, juxtaposing existing use of the site with new interventions in a way to enhance the living experience. The organization and integration of various programmatic elements encourage efficient and socially progressive means of living, reducing dependence on the automobile and condensing a range of private and public functions.

Algae Cultivation Center – Oneil Howell
Algae pools and a refinement facility are proposed as an energy ecology in support of the Cluster Drape scheme. Simple linear pools cultivate the algae, which is collected and pressed much like olives, to get the vital oil from the algae. This oil can be used directly or refined into biofuels in a clean and quiet process to replace typical petroleum fuels. Here the refinement infrastructure is tucked under the ‘Drape’ and the pools extend out from under the elevated gardens into the natural landscape. Water flows by gravity from the gardens down into the pools rich in nutrients to grow the algae. The fuel is used for mechanical systems, heating, automobiles, and cooking.

Biotic Passages
Dan Yo, Cody Baldwin, and Robert Buchanon
The concept focused on creating strategic experiences for the circulation of both pedestrian and vehicular traffic. The scheme stretched the length of the site, allowing for a cohesive implementation and integration of agriculture and architecture embedded with low and high-density regions. Within each cluster, a patchwork of programmed vegetation allows for diverse and productive agriculture to occur. A wide range of vegetative crops become an active ingredient in the recipe for urbanism.
Garden Experience – Robert Buchanon
A medical wellness center offers foundational objectives for a self-sustaining and health-enriching community. Terraced gardens and the terraced architecture invoke a sense of improvement and escalation in mental health.
Hard lines of the fluctuating stone landscape walls act as a defining edge for conservative garden and exterior natural crop zones.

Bold extensions of the roof conditions within each horizontal architecture plan stimulate the feeling of longevity; a key mental characteristic in setting short-term and long-term goals for health and wellness.
Non-direct and winding paths throughout the site stimulate a sense of accomplishment when an exit is near. The cause is the experience of wandering, and the effect is a sense of discovery.
































