Living in the Landscape

Project Objective
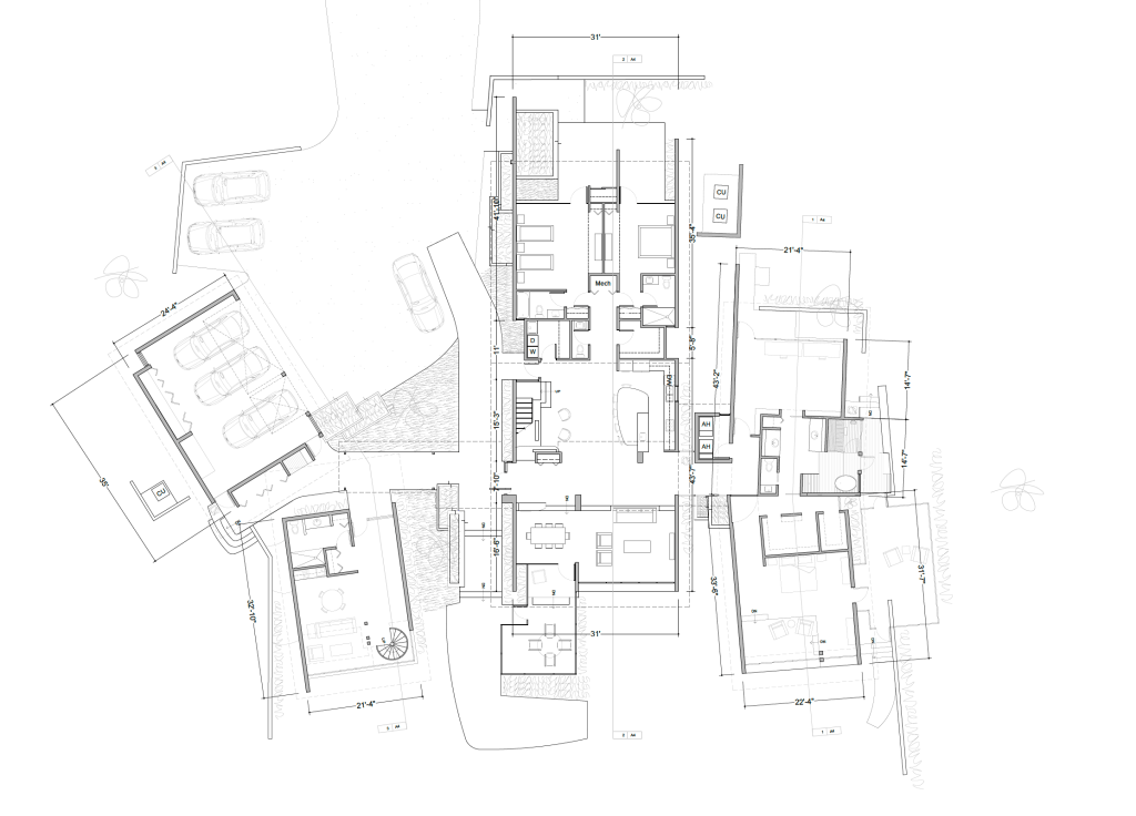
This three-module home – Main House, Master Suite, and Guest Suit – draws on the domestic trilogy of family, couple, and guest. A gently southward sloping site allows the living spaces to be terraced, opening to the southern views while using effective summer sun shading strategies. Expansive and framed private views link the family to the natural pine forest and wetland habitats.

Structural Design
The bold inverted scissor roof system is particularly unique providing a system of water drops that direct rainwater to the ground through a system of catchments, pools, weirs, and discharges that enliven rain events. The rainwater is used for irrigation and a cistern for potable water. The form is an effective strategy for the short, yet intense summer rains in areas that typically overflow small gutters typically clogged with leaves and moss falling from the trees.

Project Design
The separated yet connect architecture blurs the distinction between building and landscape offering a lifestyle of living in the site, rather than just living in the building. Multiple moments are designed to link the family and guests to the outside through views, private courts, exterior pathways, and the elevated terracing of the spaces.


The arrival court, framed by the main house, guest studio, and car park offers acts as the garden of pools and vegetation where we leave our vehicles and move deeper into the collective of natural and architectural spaces. The house is adapted from a similar tripartite scheme designed for a waterfront site in Nova Scotia. Here, a much more substantial car park is added to complete the entry courts as a formal arrival space. Construction is scheduled for late 2024.

Plan and Section Drawings
The home has a master suite with a large bathroom, walk-in closet and dressing area, office, and a private exterior jacuzzi deck (screened). The family module houses the main living spaces with a large kitchen, interior dining, exterior dining, living, laundry room, pantry room, and two guest suites (bedroom bathroom combinations). The studio has a living room, kitchenette, bathroom, and sleeping loft and offers the most privacy from the other spaces. The three-car garage houses storage, workshop space, and some of the home utilities.


