AIA Florida Honor Award, 2010

Project Objective
Lite House embraces the art of sustainable living. The home responds to the residents, community, landscape, and region by blending state-of-the-art technologies; a design process of engagement; and traditional vernacular principles that celebrate the Sanibel experience. The Lite House reveals and connects us with the poetics inherent in the practicality of daily life in a naturally beautiful place.
Advancing toward positive cultural engagement in sustainable living, Lite House proposes integrating technologically and culturally rich approaches to ‘close loop’ resource stewardship that generates productive outputs such as power, water, food, and knowledge; reduced external energy and material inputs; and supports a lifestyle of sustainability.
Project Development
Sea Glass provides the community scale and infrastructure required for the Lite•House prototype. As a stand-alone, the concepts are very good, but as part of an ecological community, resources, infrastructure, technology, and amenity is shared and can be leveraged through economies of scale (most up-to-date technology).
This integration of elements is not a new idea of course, but it is rarely developed to this level of sophistication and rarely focused on sustainable living rather than saleable amenities (here there are both). Borrowing from the ‘factor four’ principle discussed in Natural Capitalism: Creating the Next Industrial Revolution (Hawking, Lovins & Lovins, 2008) — “doubling productivity while halving resource consumption” — Sea Glass and the Lite House design team are rethinking the residential occupation of ‘neighborhood’.
Not only should it be a great community, with civic amenities, but also it should be a model for a future living while providing tangible cultural and economic value to the residents.

This concept has precedents dating back to the true Greek country home and Italian villa — self-contained dwellings that engage the resources of the site and amenity of the place — yet leverage the latest thinking and technology toward sustainable design.
Project Design
The Lite House design is based on well-established modes of efficient construction combining modular components with multiple assembly variations that provide high individuality and custom design alternatives for future residents while achieving a common architectural language that is representative of the next generation of sustainable living.
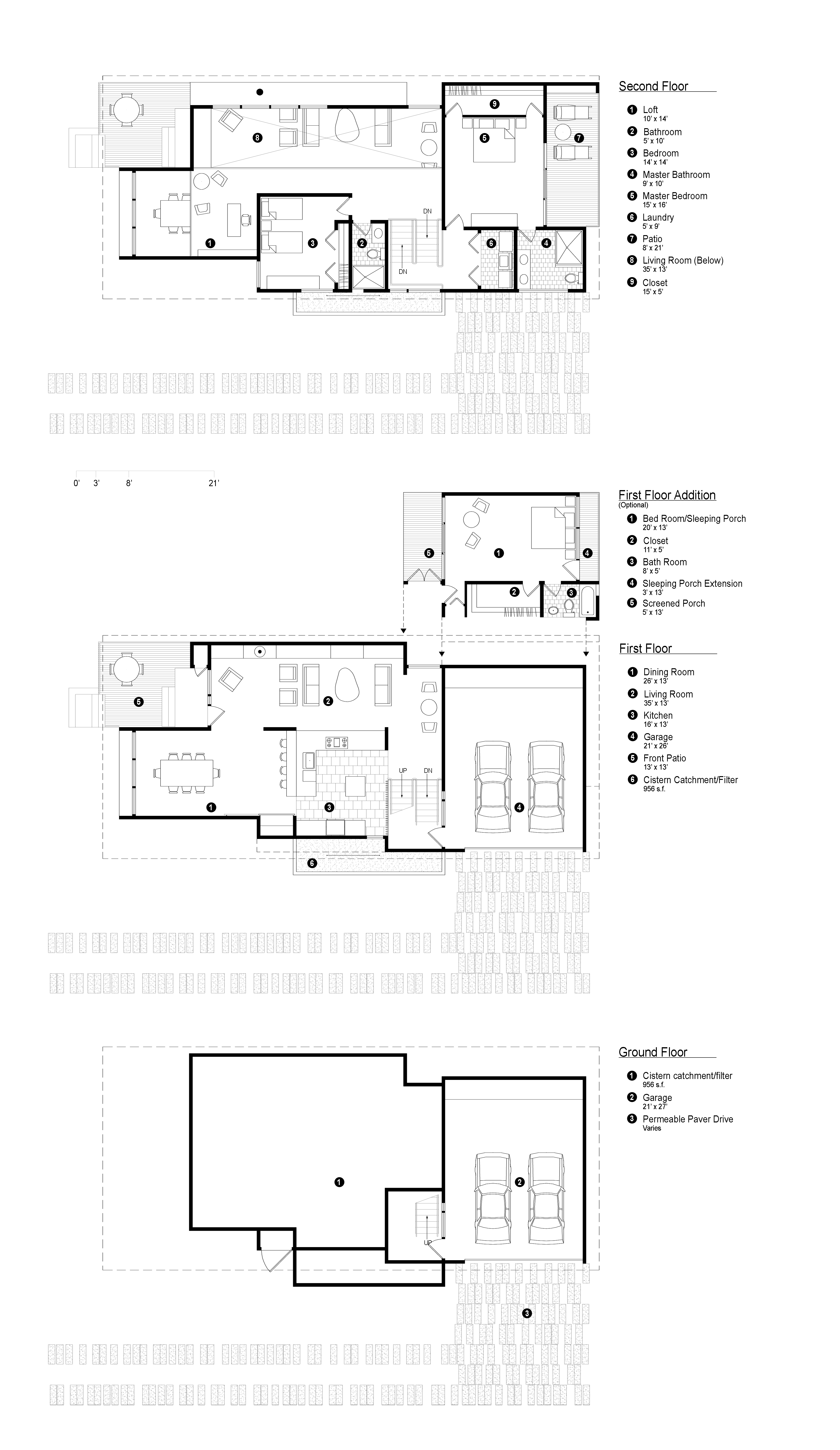
The base home is a 2,700 sqft terraced plan with two bedrooms (with sleeping porches), a bonus room (which could be a third bedroom), two bathrooms, a double-height living room, and double-height dining room, kitchen, and a large two-car garage. A variety of porches are provided.
A range of variations can be achieved including the addition of a 420 sqft master suite (or office) on the main living floor with a garden terrace above. Partial factory pre-fabrication provides high-efficiency construction (integrated systems and high-quality detailing) and very little construction waste. Homes are custom designed within the modular system to suit future residents’ needs as part of the initial phase of the Sea Glass project. Later renovations are also possible using the same systems.
Lite House Features
- Lite House utilizes the latest in high-strength, light-weight construction (Structurally Insulated Panels – SIPs).
- Lite House is designed to capture the moods of the day and season through light eliminating the need for electrical illumination during daylight hours.
- Light shelves are integrated to absorb radiant heat on the outside of the building and bounce light deep into the occupied spaces. This provides ample daylight without the glare that typically occurs with small window openings in an opaque wall.
- Lite House uses solar harvesting panels (Photovoltaic) to capture enough energy to power a typical residential home.
- Lite House employs a terracing strategy to celebrate and resolve four fundamental design strategies: elevate the house to optimize hurricane resistance; provide space for a large water storage cistern at grade; minimize long stair runs (typical of coastal construction), and stack spaces to achieve a small footprint.
- Terrace living optimizes natural cooling in three ways: tall vertical spaces enhance cooling through natural convection (stack effect – hot air rises and is expelled drawing cooler air into the occupied lower spaces); windows on two walls of all rooms take advantage of cross-ventilation, and operable clerestory windows can utilize negative pressure on the leeward side of the home to draw air in from lower spaces (Venturi effect).

- Lite House uses rainwater harvesting to provide ample supply for a typical home. The roof system is designed to optimize rainwater capture, and solar shading of spaces and provides a south-facing slope to optimize solar harvesting while maintaining a low profile which enhances storm mitigation.
- Two different roof types — ‘two-fold’ and ‘butterfly’ — have been developed to optimize solar orientation, rainwater harvesting, and the home’s orientation on the site. This strategy enhances sustainable strategies and provides needed roof-line variation within the Sea Glass community.
- Lite House bedrooms are designed to open to nature as ‘sleeping porches’ during the temperate seasons to enhance a connection with the site and place. This uses a combination of porches and windows. The room and porch can operate collectively as mentioned or independently during hot or inclement weather.
- Lite House invites residents to take an active role in optimizing the home. This includes control over ventilation, daylight, solar management (use power or sell back), and water (can switch between cistern or city water for all aspects of living) through manual or computer control (resident choice).
Roof Types
Roofs are designed to optimize solar and water harvesting while providing ample shade. Providing overhangs and the high point at the perimeter optimizes view, shading, and daylighting. Bringing the rainwater to a central location avoids the need for unsightly gutters, downspouts, and associated maintenance. Any debris should be carried to the cistern filter during storm events for easy removal and composting.

The Two-fold roof is deployed on homes in which the long axis is oriented east-west (front faces east or west). The two-fold strategy slopes the roof toward the south to optimize solar panels while also directing water, as a harvesting catchment, toward a central collection point for conveyance to the cistern — no gutter cleaning is required.
The Butterfly roof is deployed on homes in which the long axis is oriented north-south (front faces north). The slopes optimize solar orientation while directing water, as a harvesting catchment toward a central collection point for conveyance to the cistern — no gutter cleaning is required.

Lite House Space Planning
Public
Although not public in the classic sense, these are the entertainment spaces where residents host visitors and engage in the more public activities of dwelling. Double height spaces are designed to convey the sense of a large luxurious space even though the floor area has a great economy. These spaces also become the interface between the home and the community and moderate the scale of the commons and the scale of the more private residential spaces. The high spaces enhance natural cooling, daylight, and view — which contribute to well-being.

Private
Sleeping, laundry, and hygiene spaces are located on an upper level to enhance the separation between public and private activities. Bedrooms have elevated views and separation from common occupied spaces. An optional expansion will provide a master suite at the main living level, eliminating the need to use the second level on a daily basis.

Circulation
Terracing of the living spaces allows the vertical circulation to be distributed in more easily managed proportions. Typical coastal development requires a tall stair to gain entry to the main living area. In this case, the stair segments are four to seven steps between levels with spaces in between as the primary entry sequence. A stair tower provides good daylight and central access to all levels with the option to insert an elevator if desired. The home connects to both the pedestrian entry (front) facing Sea Glass commons and by automobile from the rear alley. Access to the interior can be made directly from the garage or on a path to the front of the home.

Sleeping Porches
A vernacular tradition throughout the southeastern United States, the sleeping porch, is most clearly recognized in the form of the Charleston side porch (with a lower level entertainment and upper-level sleeping space) but has many other variations. Of course, air conditioning has separated us from the ‘need’ to move outside for breezes, but during temperate periods, the sleeping porch provides an opportunity to connect with the natural environment and enjoy the quality of a place like Sanibel. Lite•House provides this opportunity to open bedrooms spatially to become sleeping porches by extending the bedroom with, large operable openings that allow the space to become ‘out-of-doors’.





