Family Home Expansion

House Expansion
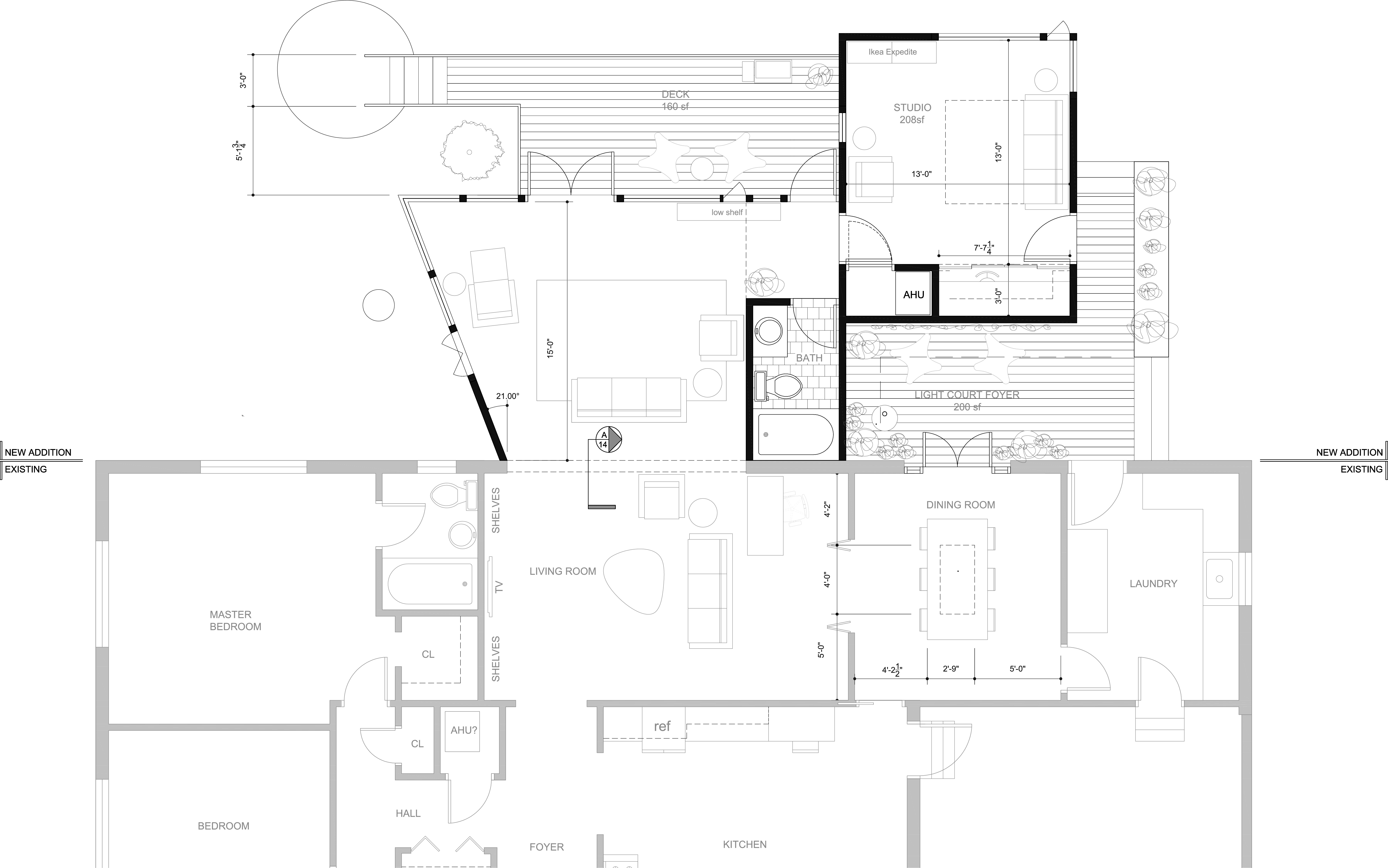
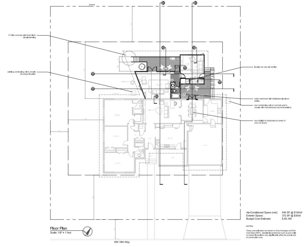
Seeking to expand their modest 3/2 on a site sloping down and away to the rear, the client sought a more playful family room with an improved view of the yard and a musician’s practice/lesson space that was somewhat separated (acoustically) but still spatially connected to the house.
This allowed a small courtyard/dining area off of the dining room with three modes of circulation to the practice studio – around the side of the house for students, through the laundry room, and the more formal entry through the new family room.

Interior Design
The new bathroom could be ‘public’ as shown in the drawings or closed off from the family room to provide a master bedroom bathroom suite by adding a small wall and door.

Deploying a diagonal to the southwest expands the small existing view portal out into both the rear and side yards extending the visual space of the home. A tall stand of dense pines and oaks to the west keeps the late afternoon sun from entering the space and exterior sunshades were also slated for additional shading.


