AIA Gainesville Merit Award, 2007

Project Objective
On any given day, there are estimated between 95-105 parentless youths living in Gainesville, Florida. Juvenile Development is aimed to design a neighborhood housing strategy that will provide these youths with the resources and family structure needed to succeed in life.
Civic culture germinates in the family, suggesting Family Units rather than institutional living. Ten youths and two ‘parents’ are gathered in a residential scaled home with semi-private exterior courts, family living, dining, and social areas on an elevated ground level. The second level organizes ‘bedroom suites’ with a full batch, storage, study desk, and balcony. Daylight, view, and natural air-flow considerations suggest passive environmental control elements. Semi-private lawns, gardens, and gathering spaces are linked closely with residential buildings folding up into green walls.

Project Development
The site design exploits nurturing as a basic principle of sustainability. Permaculture requires youth investment such as sowing, cultivating, and harvesting organic gardens as an investment ecology. A public podium, projection screen, gathering lawn, neighborhood meeting room/youth classroom, recreational lawns, and sports areas provide basic amenities to promote socialization through work, play and recreation. These elements are integrated akin to nearby homes that back up to public parks allowing neighbors direct access to the public facilities and for the project to support the grain of surrounding residential fabric.

The cluster of family units provides a single-family housing grain supporting the adjacent fabric. The public lawn captures the corner offering civic space for both the residents and neighbors. The arterial road is buffered by vegetation while allowing visibility into the sight to convey the benefits and use of the project.

Site and Context
The project site is located in east Gainesville. East University Avenue, an arterial road connects Gainesville without outlying areas to the north and east. The area has blighted residences, a school board bus parking, a maintenance site, and some well-kept residences. Just to the south are the main Reichert House administration and after-school facility.

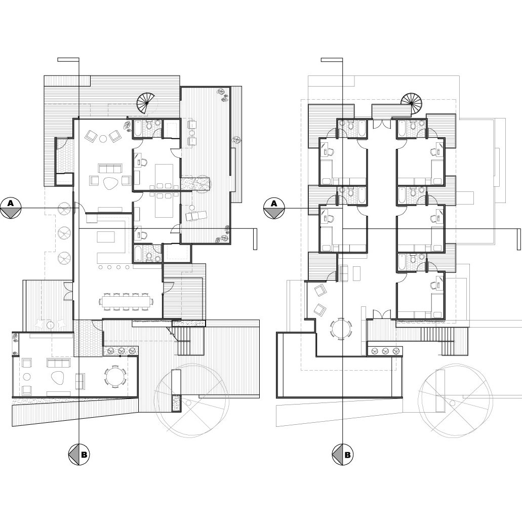
Slot Units
Slot units optimize the linear floor plan for access to daylight. Ground-level is slightly raised (18″) to provide patio and porch areas as intermediate exterior spaces. These are generally located mid-block.
A two-unit convertible to two bedroom) suite with semi-private exterior spaces is provided for the ‘parents’. Maybe individuals or a couple. Living and dining occur on this level. Bedroom-bathroom combinations are provided at the second level with a family lounge/study overlooking the living space below.
Green wall marking entry and conveys water down cistern to the cistern below.
Corner Units
Corner Units organize in a square plan with occupied spaces around the public perimeter to ‘turn the corner’ on the site. Slots and Corners are pared to share cistern infrastructure that is integrated with shared porches.
Building materials include a combination of concrete slab-on-grade (recycled aggregate), SIPʼs panels, conventional framing and roof trusses, and polycarbonate panels (in a double layer R-9 configuration) as a clerestory to allow light in, fixed insulating glass and off the shelf operable windows. Natural ventilation is assisted by the stack effect with acoustically isolating transom ducts to provide natural cooling through most of the season – mechanical cooling will be required for at least 3 to 4 months. When possible, sections will be factory fabricated using SIPʼs panels for assembly on site.
These units, square in plan, break the scale of the street down as the ʻbook endsʼ to turn the corner. Clerestory windows bring in light and provide natural ventilation as integrated elements of a double-height core space for living activities.
Exterior Spaces
Youth ball fields and organic gardens bring work and play together as nurturing modes of interaction.
Vegetative walls are used as a second skin to shade the building and provide vertical gardens to soften the architecture. These elements mark the entry spaces to residential units and are clues to gardens beyond. Aromatic blooming vines such as jasmine are suggested to signal the seasons.






