The masterplan alternatives seek to fold-in individual projects and to align necessary maintenance, enhanced spaces, building code remediation, and budgetary opportunities and constraints into a unified long-range masterplan vision guided by the larger conceptual ideas that have emerged in the masterplan process: Arrival & Civic Image; The Service; Fellowship; Education; and Outreach.

Project Objective

The ‘State of the Church’ effort and report evaluated and documented project proposals to date, recent renovations, ongoing projects, deferred maintenance, congregation perspectives, local and adjacent context, annual expenses, and the current financial resources available to the congregation. That report also referenced a substantial body of historic documents, committee meeting summaries, inventories of renovation efforts, and conceptual ideas that have been implemented, partially implemented, and in design or future planning phases at the time of this report.

A workshop was held on February 9th, 2020 with the Building and Grounds Committee, Reverend Jack Donovan, and members of the congregation (about 25 people total) to prioritize recommendations and ideas put forward in the State of the Church report. The masterplan proposals put forward in this report move this effort to the next phase of advancement for the UUSP – a masterplan long-range (20-year) vision with supportive prioritized projects that can be implemented in phases going forward.

Project Development

There are a number of challenges, opportunities, and creative ideas were put forward in terms of the current program needs, the condition of existing spaces, renovations that have been recently implemented, and arrangements of uses that could enhance the church facilities. Summarized below are aspirations expressed by the congregation in relation to the current status of the church facilities, and the mission of the masterplan project.

The five areas of focus (Arrival & Civic Image; The Service; Fellowship; Education; and Outreach) provide a framework to evaluate the tasks outlined in the proposal for services. This effort seeks to ensure that the masterplan proposals and individual recommendations put forward align with past investments, historic integrity, and new code requirements to the extent feasible. The tasks below have been completed and the outcomes are included within the masterplan proposals.

Existing Site
Proposed Outdoor Area Addition

Goals- Renew, Restore, and Rejuvenate

• Create a prioritized and sequenced roadmap for rehabilitation of the 1929 and 1967structures, totaling approximately 12,000 square feet, to meet the changing needs of the congregation while retaining and enhancing the property’s historic character.
• Create a guide for planning, budgeting, rental capacity and fundraising.
• Build in flexibility to address evolving needs and opportunities of diverse funding sources.

The design team from Martin Gold Architects, in collaboration with Building and Grounds Committee and members of the congregation participated in a workshop. The purpose was to engage the participants in design scheming exercises that could elicit issues of concern, and to weight those concerns with respect to thematic priorities. The groups would attempt to work through those ideas and inherent complexities on paper. Approximately 25 members of the congregation participated in the workshop. The results were quite positive as independent member groups seemed to elicit many of the same priority themes and preferences for enhancements and necessary renovations.

Workshop teams of 3 to 5 persons used printed plan drawings with trace paper overlays to sketch alternative proposals, note comments, and doodle ideas that came to mind during the workshop session. Each team elected a representative to present the team findings and lead discussion with the other groups. The comments and suggestions that noted on the drawings and post-it notes, in addition to the notes taken by the MGA team were compiled and qualified in the list below. Open bullets represent issues listed once or perhaps twice and closed bullets represent issues/comments made multiple times.

Gilmore Acoustic

The interior space recommendations are organized into high, medium, and priority levels in terms of their recommended timeline for implementation. The priority level balances the needs and desires established by congregation, Building and Grounds Committee, and the potential for return on investment to attract new members and to expand utilization of the spaces. The recommended interior space projects are individually consistent with both of the master plan schemes put forward and are mutually supportive. It is not critical that they be done in a particular order within their priority. Church leaders should continue to evaluate the priorities with opportunities that arise such as grants, the preferences of philanthropic donors, material donations, or a change in the circumstances of a space that must be immanently addressed.

The Sanctuary is largely in good shape with the exception of a couple structural members in the roof truss system. There is at least one truss bottom chord and perhaps two that should be replaced soon. The situation has been evaluated by a structural engineer Dr. Nawari Nawari PE. and recommendations included a couple options for replacing the truss in a manner that is visually consistent with the historic truss system. This will require clearing of pews, a significant scaffold and temporary support system and could take one to three weeks to complete. This work will require a few conceptual approaches to be developed and budgeted, a strategy selected by the church, and then detailed engineering drawings will be needed for permitting and implementation.

Pews Arrangements

Project Design

Most of the congregation seems to arrive at the front of the Sanctuary or through the tower entrance via the ramp. The proportion of the congregation that drive, walk, or take transit is unknown at this time but all modes are viable given the location of the Church. Figure 3 below illustrates the pedestrian routes to the Sanctuary from the nearest bus stop and parking locations available to the church. On-street parking is also available with multiple locations nearby. Rates and availability vary (sometimes free on weekends) and there are time limits of 2 hours in some locations.

A new terrace on Mirror Lake is the major new element with the potential to become an iconic civic feature while supporting a variety of events. The ‘gardens’ are the enhanced interstitial spaces between Gilmour and Conway including the memorial garden and the space at the western boundary. The interstitial space between Conway and Gilmour is reconfigured with a new gateway element, supplemental landscaping, shading elements, and a new primary access elevator. This central garden would become the entry foyer for people coming to visit the administration, participate in outreach efforts, or to attend community support activities. Although more visually inviting, the new gate and fence system would be electronically monitored and typically locked as the first security layer. Beyond that, the elevator and doors would have security access by card or code and would register users. This would eliminate the possibility of doors left unsecure accidentally.

The garden space to the west, would have landscape improvements, a new fire escape element at the northwest corner of Conway Hall and would continue to support the outreach activities currently held in that space. New fencing on Arlington, Ave. N would enhance security and visually improve the façade. In this scheme, the existing small building is maintained with upgrades as is currently planned to better serve the Friday picnic and other related activities.

This is a comprehensive scheme with significant circulation improvements, alternatives for the sanctuary arrangement, improvements to Conway Hall, improvements in Gilmour Hall, and improved security while being visually more inviting in the community.

The gateway should be a simple but elegant structure signifying the UUSP presence both spatially and with the Unitarian Universalist symbol of the flaming chalice. Beyond this gateway, there would be secondary open gateway delineating and formalizing entry into the memorial garden. The garden space then continues on to wrap around Conway Hall and connect with the social, recreational, outreach, and vegetable/herb garden. The current landscaping is largely maintained and allowed to expand into the grassy area between the new fence and the sidewalk.

Section and Plan Drawings

In addition to providing a significant revenue stream for the church, the school could enhance the UUSP’s presence on Arlington Ave., N. by completing the street edge with the adjacent building to the west. The new program would add energy and vitality of children coming and going. The school might also attract younger members (new families) to the congregation and might generate more associated activities for moms and dads who may be bringing their kids to the school.

A new school would of course require a significant investment of time, energy and resources and needs more detailed further study by church leaders, input from educational consultants from other UU’s, and a more detailed evaluation of the Florida’s educational facility requirements. What is presented, is a conceptually viable long-term vision strategy for the church to consider.

Kitchen Section Elevation

In this arrangement of the Terrace, the historic entry sequence to the Narthex/Sanctuary is maintained as is – with cosmetic improvements as needed. The Terrace seeks to only touch the existing structures at the Tower and Cloister providing universal access (ADA), a functional event space, and limiting the impact of new structures on the historic structures. A perimeter bench is proposed in addition to a dense hedge to provide a clear demarcation between the public street and the Terrace while maintaining view from the Terrace to the Lake and allowing enough visibility to see people occupying the Terrace. Other strategies such as lighting, video surveillance, and good communications with law enforcement could minimize vagrancy while transforming the space into a desirable event location.

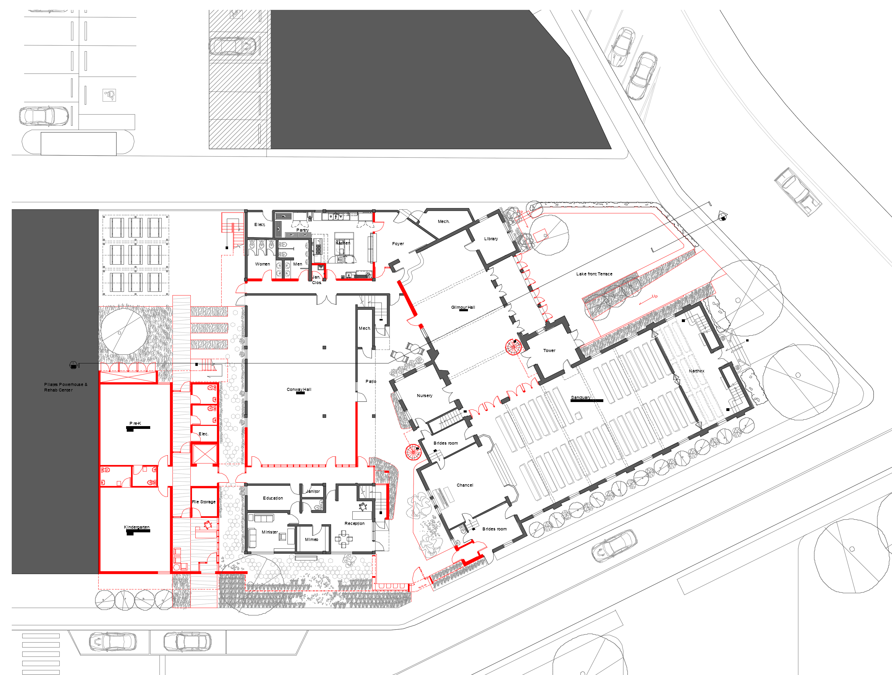
Ground Floor Plan

The plan illustrates the organization and circulation for the school and the new administrative spaces. The classroom designations in Conway Hall are historic and the partitioning of classrooms would be modified as the scheme is developed. The currently designated religious education classes could remain or be relocated to the first floor of Conway Hall should the school be implemented.

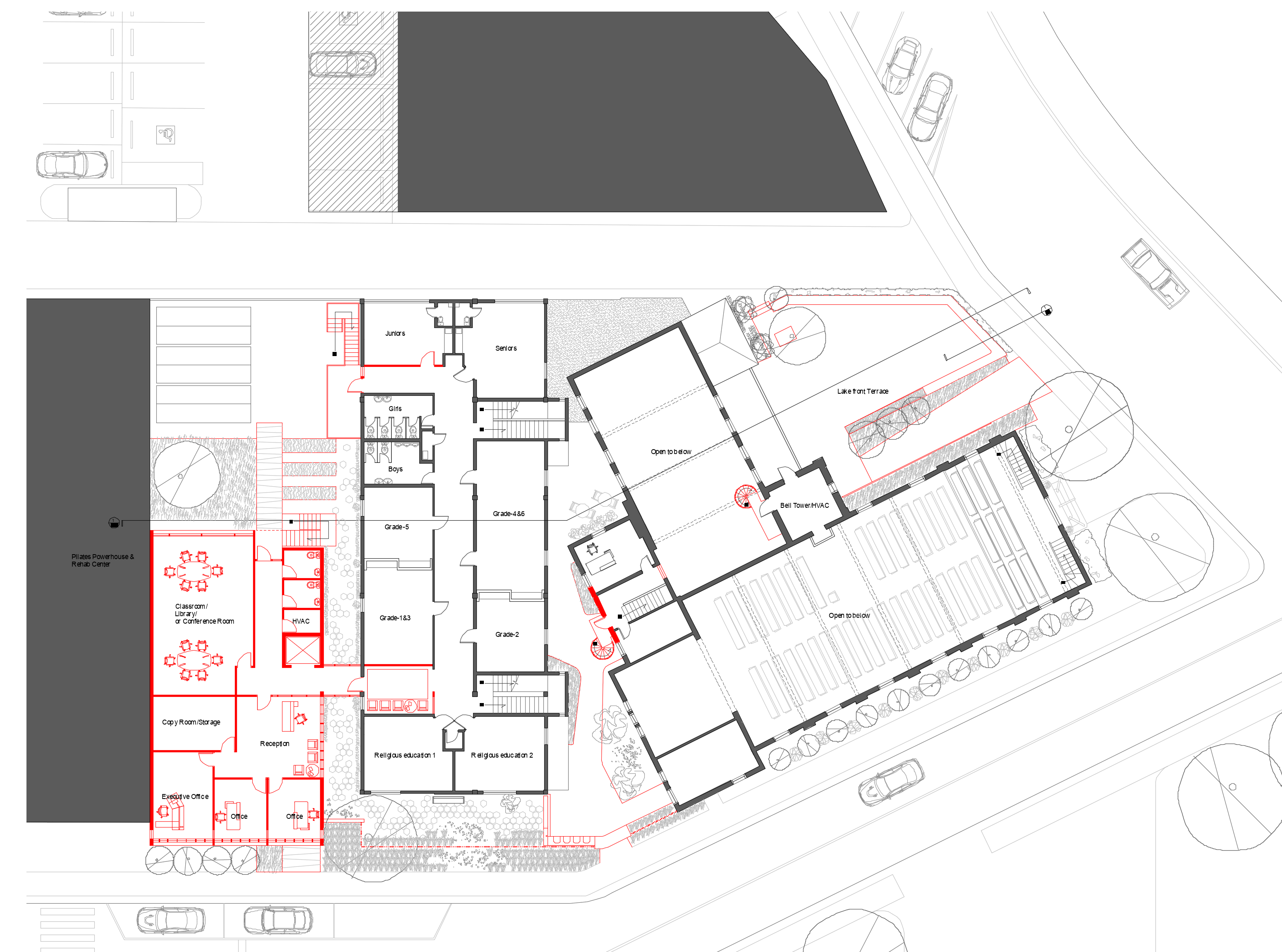
Second Floor Plan Drawing

The building addition required for a new school, occupies a significant portion of the recreational/social garden that would also be the playground for the school in this scenario. In seeking to expand the area for play, options included the rooftops of the new facility or the roof deck of Conway Hall. Given that Conway already has the stairs in place and was design for occupation, this scheme proposes a play area on the roof of Conway hall. Access will be via the elevator in the new building (3 levels) and by the three stair systems serving the roof deck for life safety egress. It is possible to move the play area to the top of the new structure and open both rooftops to occupation. Of course, the new structure could be 3-5 stories if other program elements are desirable. The masterplan scheme here seeks to show the viability of the school proposal in terms of meeting Florida’s educational facility requirements, cost effectiveness to operate, and potential return of operating capital for the church.

Third Floor Plan Drawing