AIA Gainesville Honor Award, 2009


Project Objective
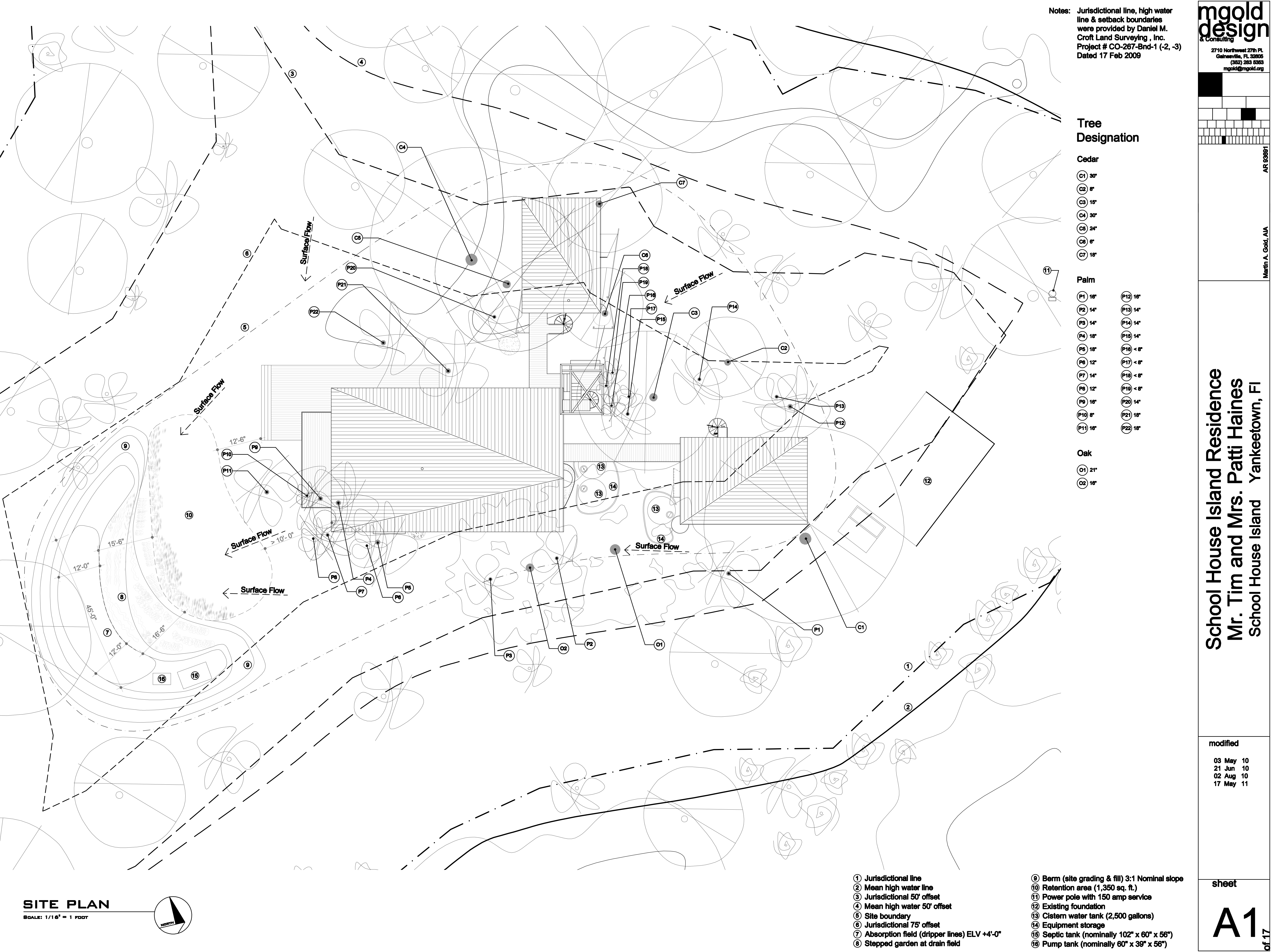
Schoolhouse Island Residence is a proposal for sustainable living on Florida’s nature coast – the archipelago and salt mash characterizing western Levy County. Wetland salt marches, cabbage palms, cedar, and oak trees populate the island which is inaccessible at low tide and on average 3′ above sea level (7′ highest elevation).
The project expands vernacular traditions by expressing the integration of current materials, technologies, and lifestyles toward a new indigenous architecture. The client has developed a vision for occupying the site with a large extended family with supportive social spaces, sleeping pavilions that connect to the landscape, and integration of responsive sustainable technologies. The Earliest island inhabitants are thought to be Timucuan Indians dating back over 1000 years and remnants of their tools and appetite for oysters and clams still remain. The seven-acre Schoolhouse Island gained its name distinction in the early 20th century when the area was dominated by temperature, logging, and later phosphate industries – the local schoolhouse was located on the island.

Project Development
The architectural strategy was conceptualized as a tripartite organization, a family pavilion gathering a collection of interior and exterior social spaces linked to a guest pavilion and a third more private pavilion for the client. Island contours and the relationships between naturally open, vegetated, and treed areas implied a solid void relationship that strongly influenced the location of the architectural pavilions. A unity between the large open clearing to the west and connected smaller natural niches (north and east) harmonized with the tripartite scheme, leading to the site strategy of linking the social pavilion to the large clearing with sleeping spaces sequestered to the protection of vegetated riches.
This naturally left the longest axis running east-west optimizing the balance between solar heating, shading and daylighting. Initial studies of architectural typology evaluated traditional pitched roofs, wrapping roofs, and trey or v-roof forms to unify the aesthetic expectation with high wind mitigation, water collection, and views.

Construction
Spatial thermal responses allow complete outdoor living through operable walls, fixed screen spaces, and screen curtains to allow flexible modification of spaces that respond to environmental conditions. A high ceiling with the “V” geometry promotes airflow up and out at the top to carry heat away. Vegetative screens are used to shade areas near the building. They connect the architecture to the ground and natural vegetation acting as vertical gardens of aromatic plants such as jasmine.




Building Materials
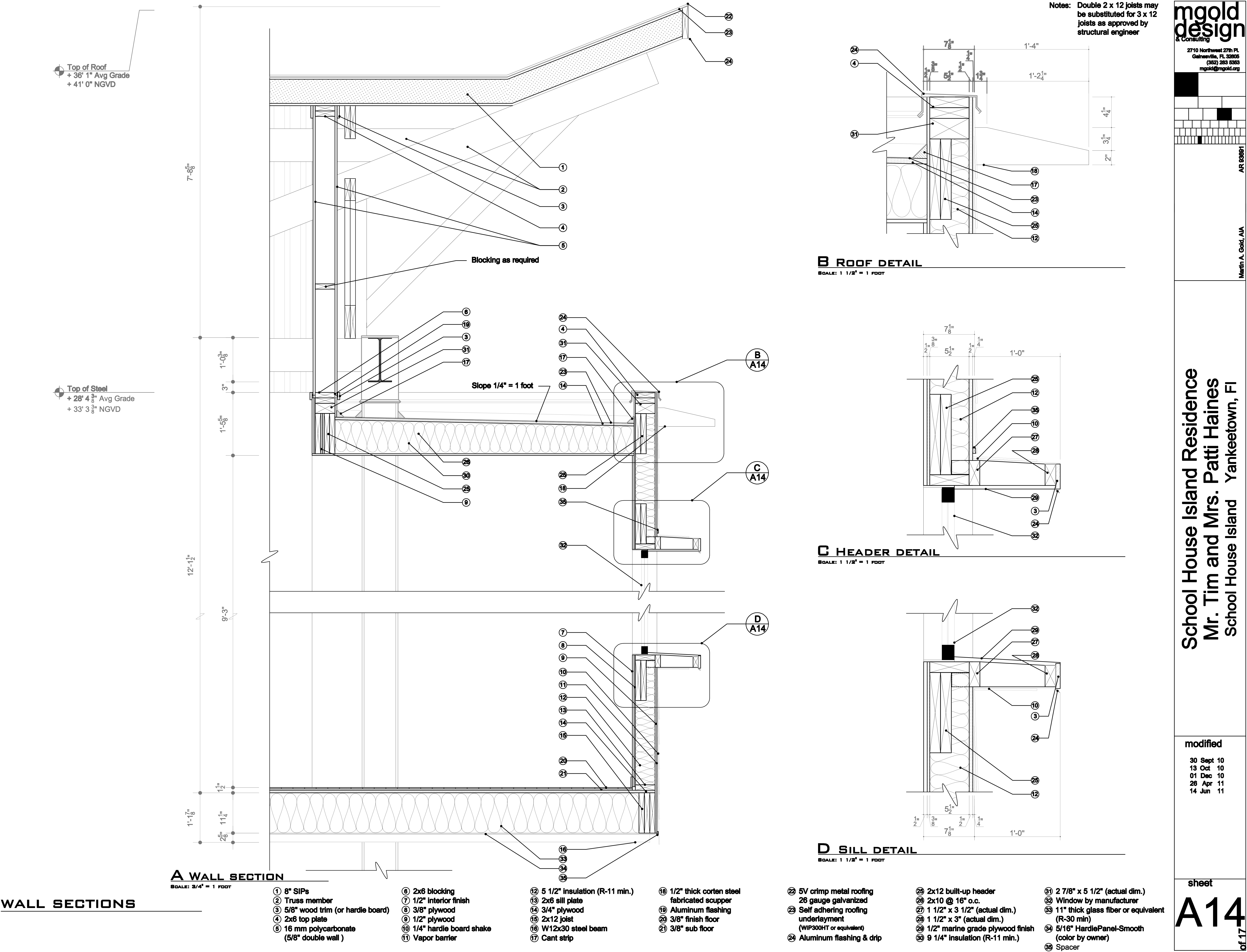
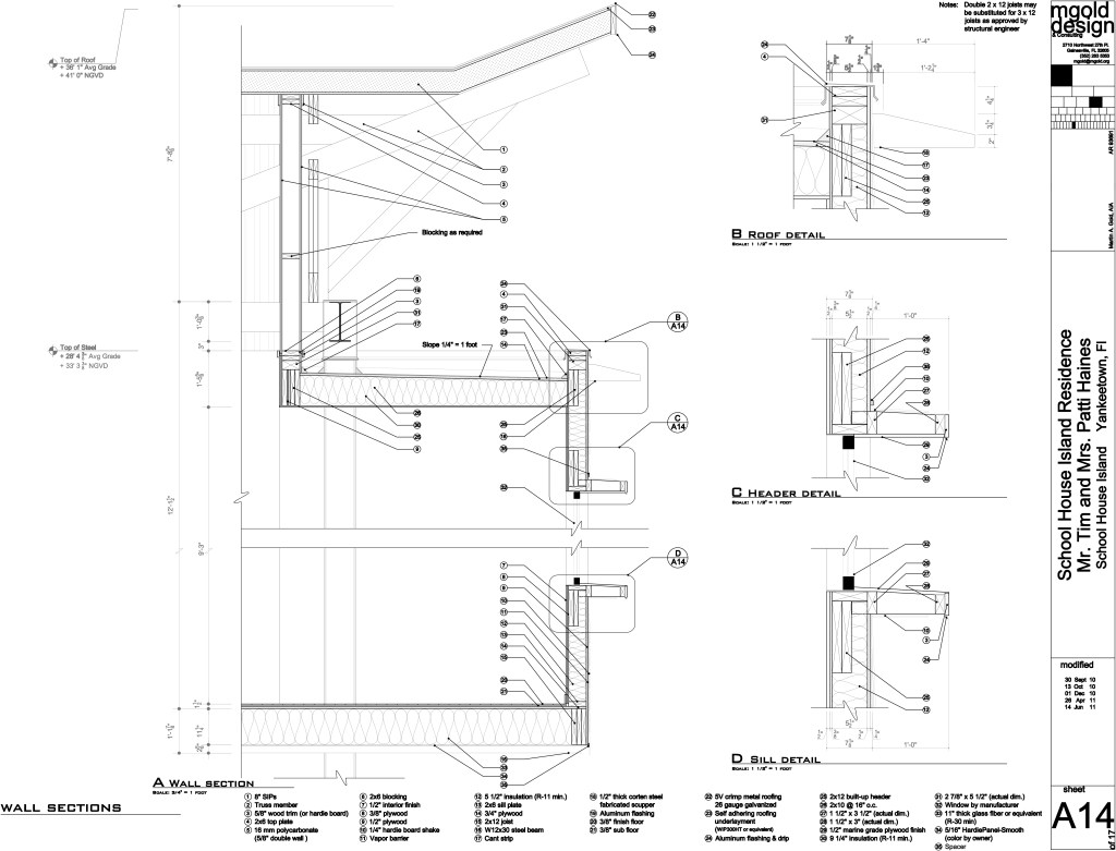
All building materials will be delivered to the site on a shallow-draft barge during high tide conditions. The project constraint requires the use of lightweight materials to the extent possible. To address this, a minimally-sized, poured-in-place concrete moment-frame will support the occupied spaces above flood height. A combination of lightweight structurally insulated panels (SIPs) and conventional framing including a trussed roof structure will be used to enclose the spaces.


Fortunately, the client is leading the team in this area and has purchased the barge and is coordinating the delivery of materials around the seasonal tidal schedule. Other enclosure materials include multi-wall polycarbonate panels (light transparent – vision obscured), segmented and roll-up large-format doors, and aluminum operable windows. The team is studying stained hardy board cut into shake style elements to capture the vernacular scale of shake with more durability and longevity.
Final Construction Detail Images



Project Design – Implementing Sustainable Strategies
Sustainability strategies leverage site resources such as ample breezes, seasonal rain, protective vegetation, and sunlight. The v-cool system floats over the occupied spaces providing needed shade while optimizing rainwater harvesting as large scuppers direct water to discerns below. This simple yet elegant form is maintained easily and the low horizontal profile reduces lateral forces generated during high wind events. Collected rainwater is the only freshwater source on the island. Passive thermal strategies are used exclusively to maintain comfort by shading and capturing prevailing breezes that are optimized by venturi effect and stock effect ventilation techniques. No mechanical cooling will be used.


Featured Cisterns
Cisterns are engaged as an interconnected system with three independent chambers (one located at each pavilion) that allows water to be transferred for use or for maintenance without draining the entire system. This is a critical response to the long drought period during the spring when the occupation of the site is optimal, yet rain can be sparse. Plenty of rainwater is available from July through February. Self-composting toilets will be used as both a site ecology strategy and as a means to reduce reliance on rainwater.
Observation Tower
The observation tower acts as a lantern in the evening as a contrapuntal gesture to the horizontal roofs floating on light below. A wood frame skeleton is wrapped and tethered with lightweight tensile fabric skin that responds to breezes and can be removed prior to storm events. The tower will store water as part of a gravity-fed water supply utilizing the cistern water and will allow access to the roof of the social pavilion for maintenance.










