
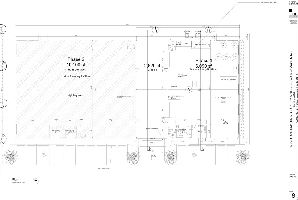
Project Objective
Initiated as a simple building for a machine shop, this project evolved into a study of multiple building construction types: long-span steel frame and metal cladding; concrete masonry unit bearing wall structure with steel beams for the roof, precast tilt-wall construction with steel beams for the roof.
We developed detailed construction documents for each of the potential systems at the client’s request so he could get high-confidence bids and compare the cost-benefit of each strategy. His analysis included calculating insurance costs, the value of sprinkler systems, daylight strategies with skylights, and ventilation through clerestory windows.
Phase 1 Plan Drawings

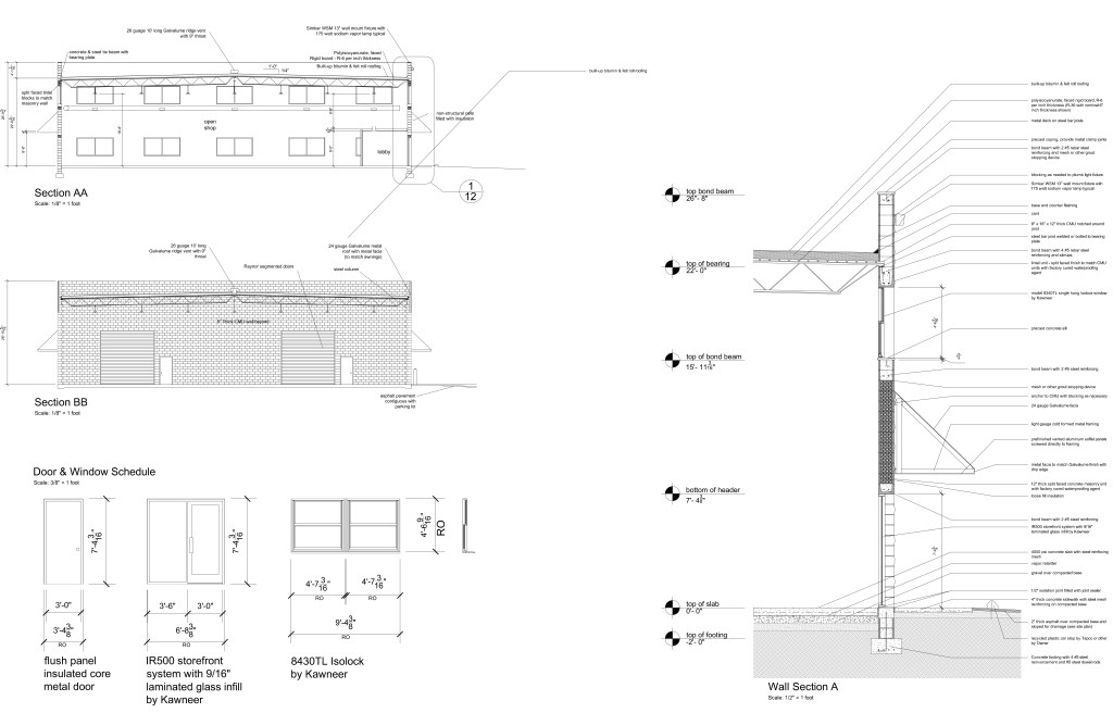
Elevations

Sections and Detail Wall Sections

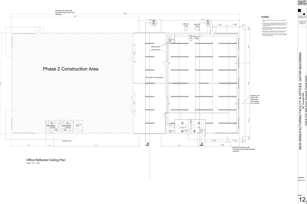
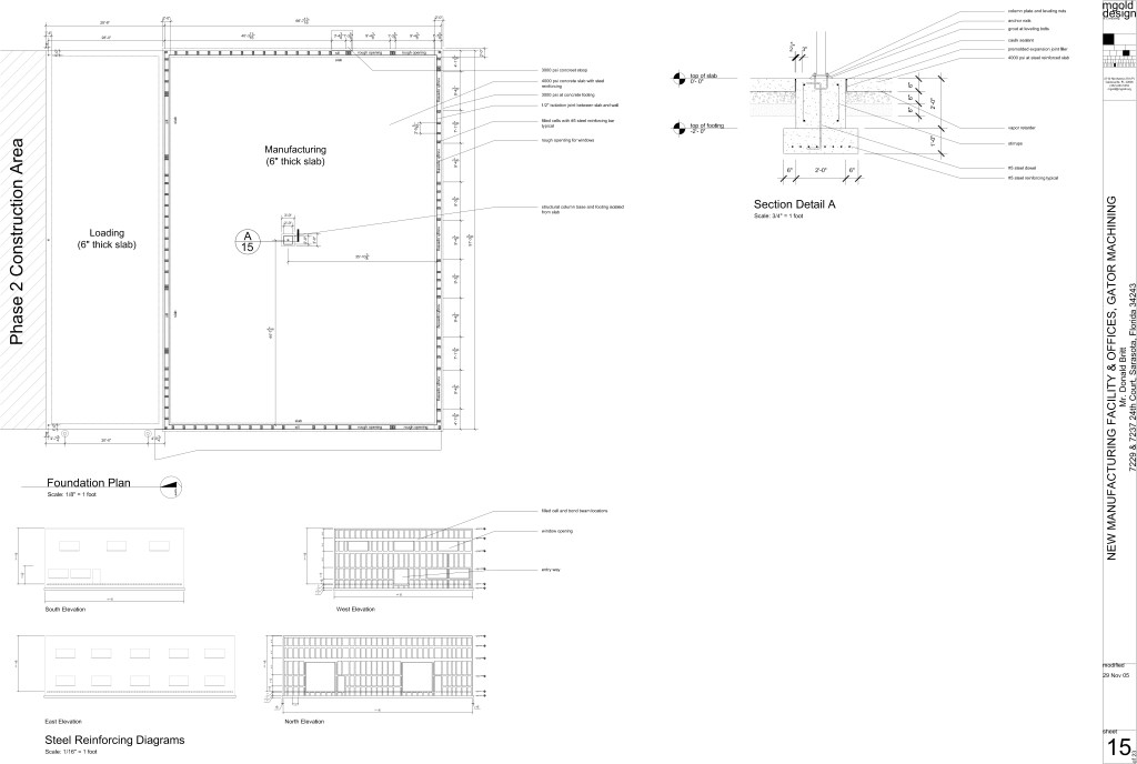
Phase 2 Plan Drawings






