Connective Tissue – trellis as mediator

Addition Design
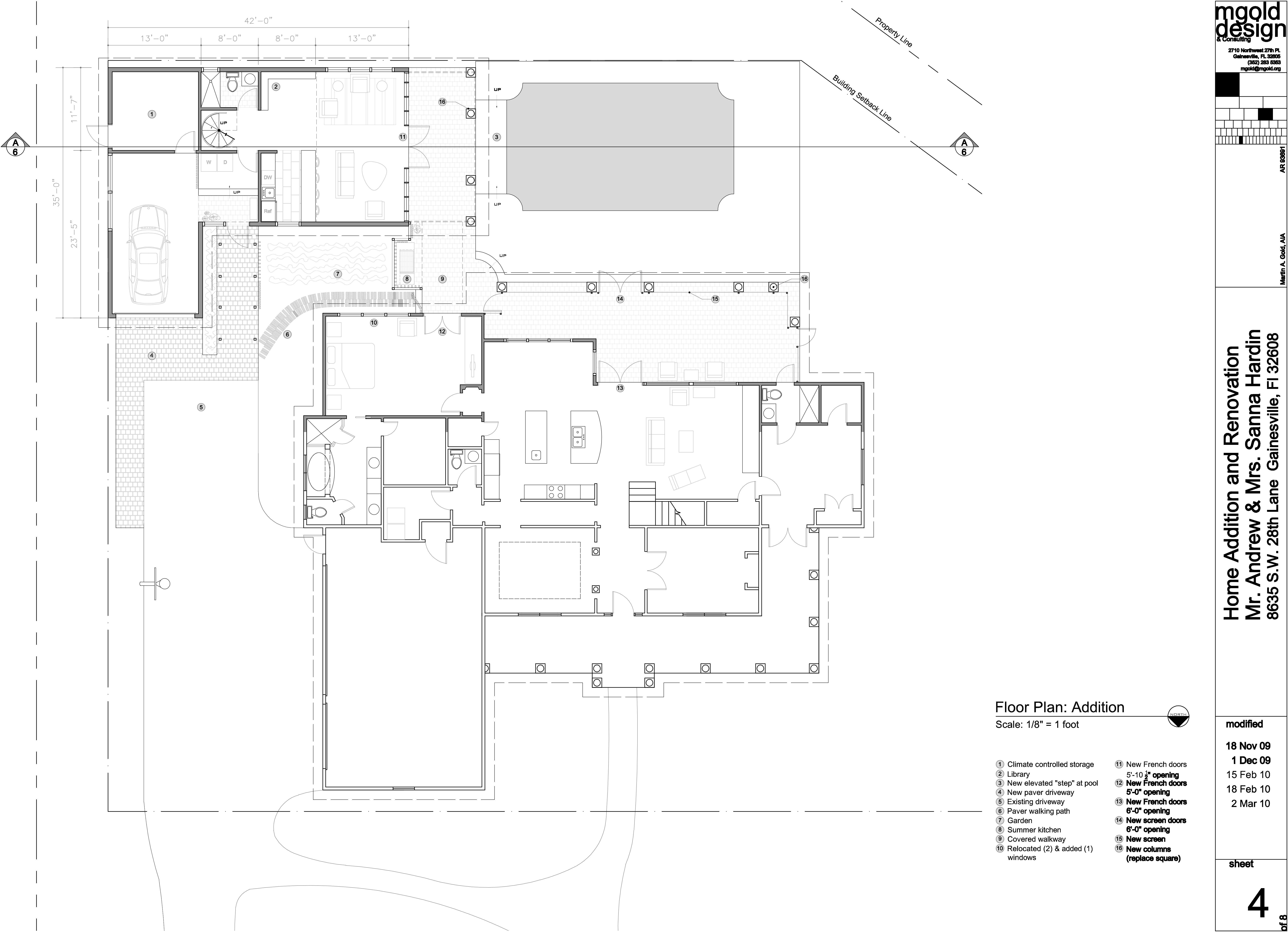
This design was not only for a pool and guest house, but an art studio and garage for a cherished vintage automobile with an outside kitchenette with grill. The proposal seeks to bring these tangential program elements together while also resolving the formal neo traditional architectural language that has been established in the neighborhood of Haile Plantation, just outside Gainesville, Florida.

Project Development
The proposal attempts to pull together auto entry from the driveway, walkable access to the driveway with a semi-formal entrance to the guest house, and a formal relationship to the pool and classical elements of the existing home that physically connects to the house for protected circulation between the structures.
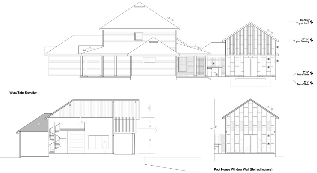
The only viable view is to the west facing the pool, with other vistas to the backs of other houses.


Designed Shading
The trellis is deployed traditionally to screen and support, but is carried further through varied configurations and scales to provide the connective tissue in terms of form, shade, proportion, and linkage. On the west façade of the pool house, the vertical trellis shades the interior two-story spaces and provides a view out to the pool.
The trellis acts volumetrically to maintain the classical form, suggesting a volume being supported on the classically influenced columns that would match those of the existing structure.

The interstitial space between the pool/guest house and the existing house is stitched with vertical and horizontal trellis elements that bring the entry in front of the garage. These allow vegetation to grow vertically in this emerging garden courtyard, defines the grill/kitchenette, and gives privacy to the entry to the guest house.



