Designing a rest stop for recharging electric cars.
Project Objective
The client was interested in a tripartite scheme that would blur the interior and exterior spatial boundaries. Visitors arrive in a large exterior foyer that carries their view across the waterway to the island beyond, while terracing down with the natural slope of the land to the entertainment patio facing the island.
There are three proposed design concepts, each of which are shown below and beginning with concept one.

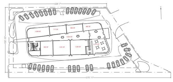
Concept 1
The first design features a central cafe area taking up 12,285sqft. The parking and charging stations surround the cafe and allow for a very interactive relationship between pedestrians and the vendors leasing inside. There are a featured 42 parking spaces. 25,057 sqft is non-permeable ground, and 5,328sqft is permeable ground.


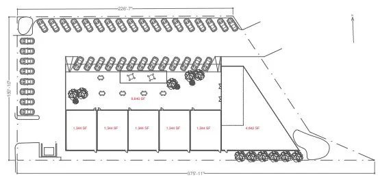
Concept 2
The second concept concentrates on the vendors in the Southeast corner of the site. Parking is used to frame a 6,840sqft plaza for people to gather as they stop. There are 39 total parking spaces. The interior building footprint is 11,241sqft. There is 18,760sqft of non-permeable ground, and 5,673sqft of permeable ground.


Concept 3
The final design focuses on the vendors in the Northwest corner of the site and allows for parking to exist in a more concentrated manner below. The building has a total area of 14,040sqft. There are 57 featured parking spaces. There is 23,302sqft of non-permeable ground, and 5,328sqft of permeable ground.






