Addition of New Fellowship Hall

Project Objective
The McIntosh Presbyterian Church is pleased to launch the New Fellowship Hall Initiative. This conceptual design proposal is based on emerging enthusiasm to engage youth in congregational activities; the desire to improve community access to the congregation; and to enhance the stature of the outstanding Sanctuary in the community. Inspiring fellowship facilities that can attract events such as wedding receptions, and community gatherings and accommodate a larger congregation are critically needed.

The proposed ‘Social Deck’ extends Fellowship uses providing casual exterior event space for cook-outs and other fellowship activities. Circulation and green spaces are designed to support the primary activities – worship and education – within a garden landscape that connects interior spaces to the exterior complementing the prominence of the historic sanctuary on the corner.

Phase 1
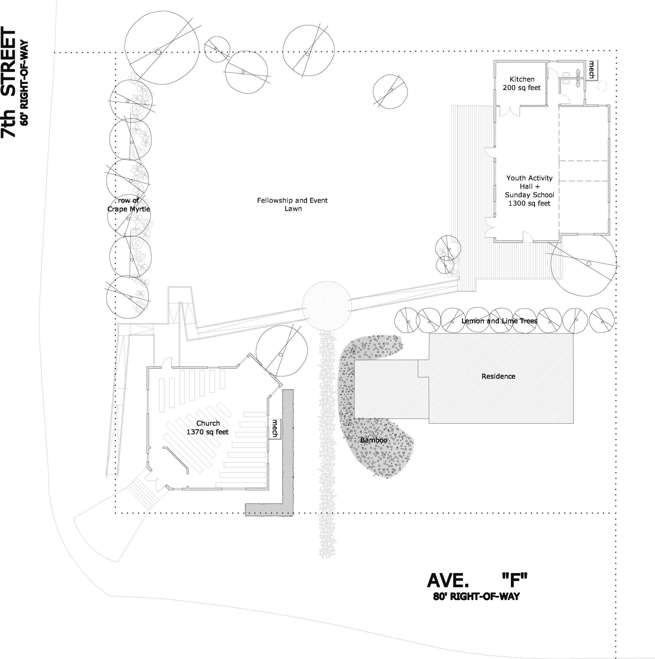
Phase 1 relocates the existing Fellowship/Sunday School facilities and maintains their current function. Temporary circulation is organized around an ‘Event Field’ that could be used in multiple configurations from highly formal ‘tented’ events to more casual recreational activities. Phase 1 includes preparing the site for the new Fellowship Hall and minor renovations to the circulation to connect the Chapel to the new Fellowship Hall.
Phase 2
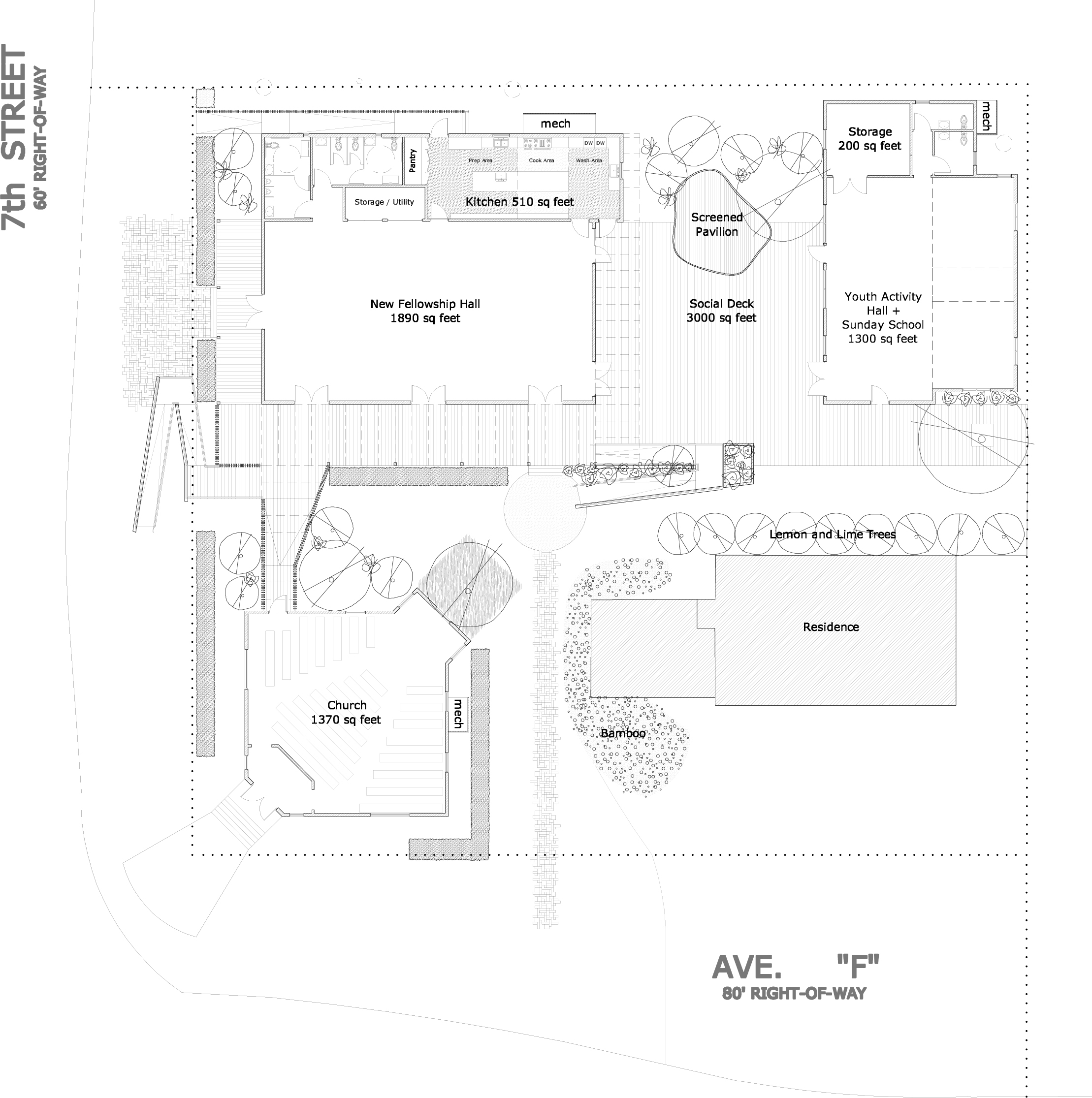
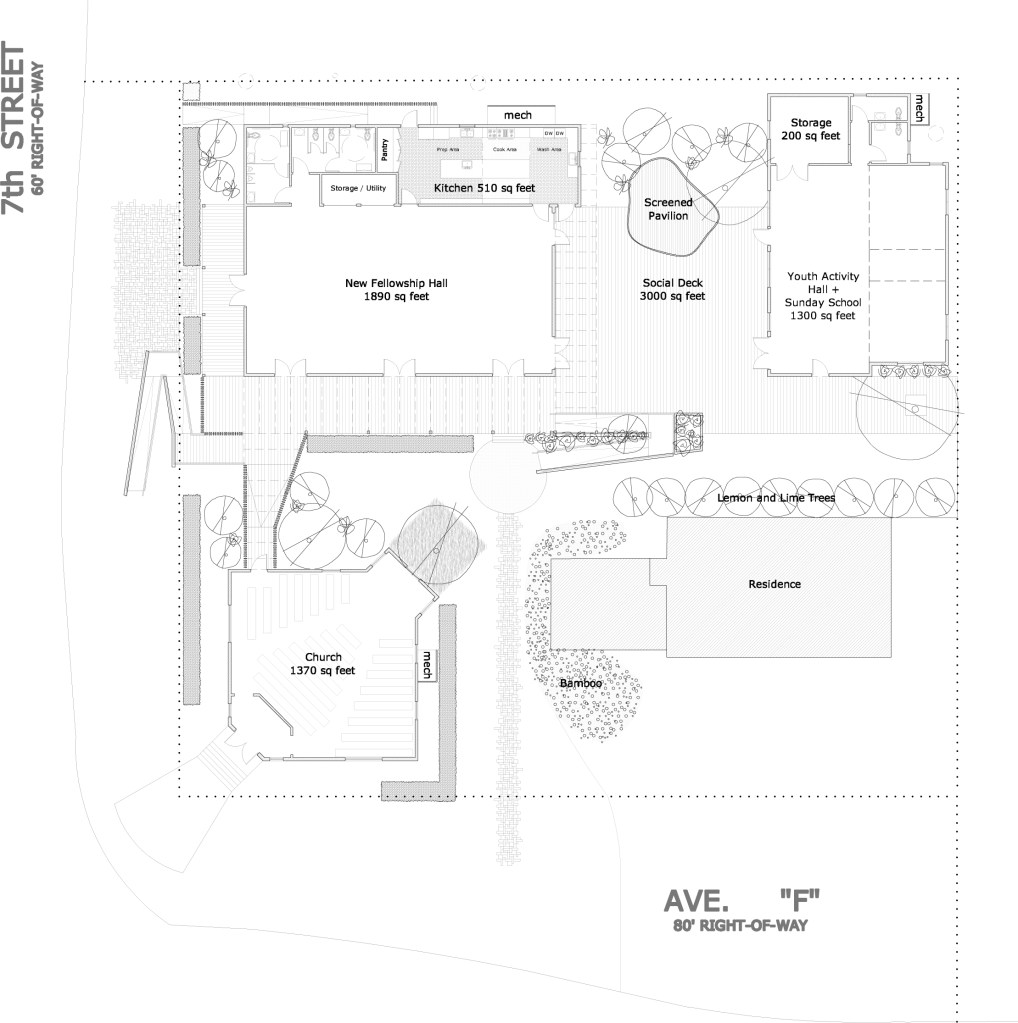
Phase 2 completes the Fellowship Hall, Veranda, and Social Deck with minor modifications to the circulation and landscape additions to achieve the Garden.
The new facility doubles the enclosed fellowship capacity – including the main space, storage, and a greatly expanded kitchen with catering access.
The Veranda extends the Fellowship Hall into the Garden during temperate seasons allowing for great flexibility in the types of events supported by the architecture.
Plan Drawings
The proposed Fellowship Hall will be located on the Fellowship and Event Lawn in Phase 1. Developing around the ground will create an internal circulation for those worshiping here.







